Terreno edificabile a Pradamano

Pradamano (Udine)

Rif: v
Condividi Linkedin Whatsapp Stampa
€ 120.000
Vendita
Terreno edificabile
920 Mq
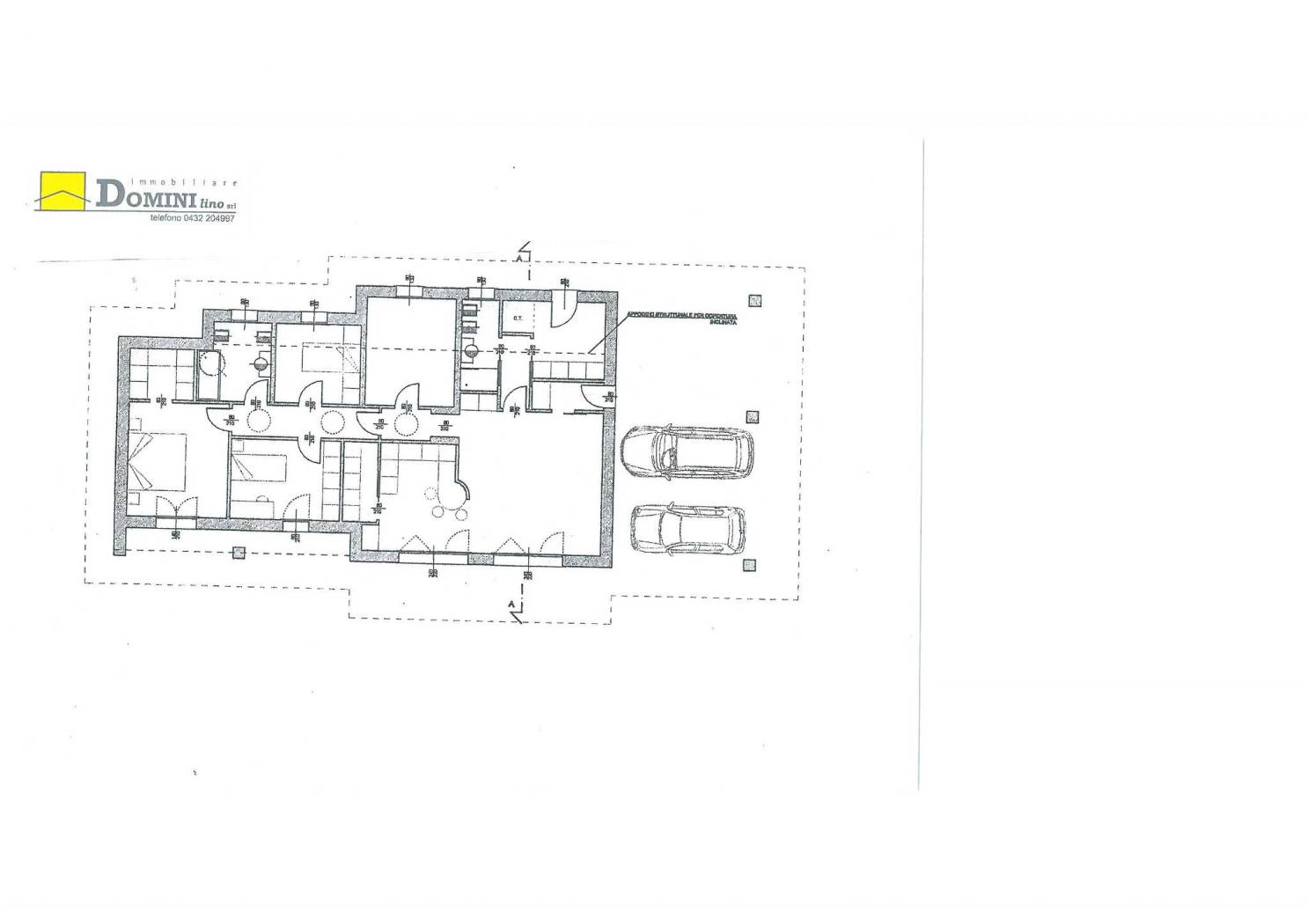
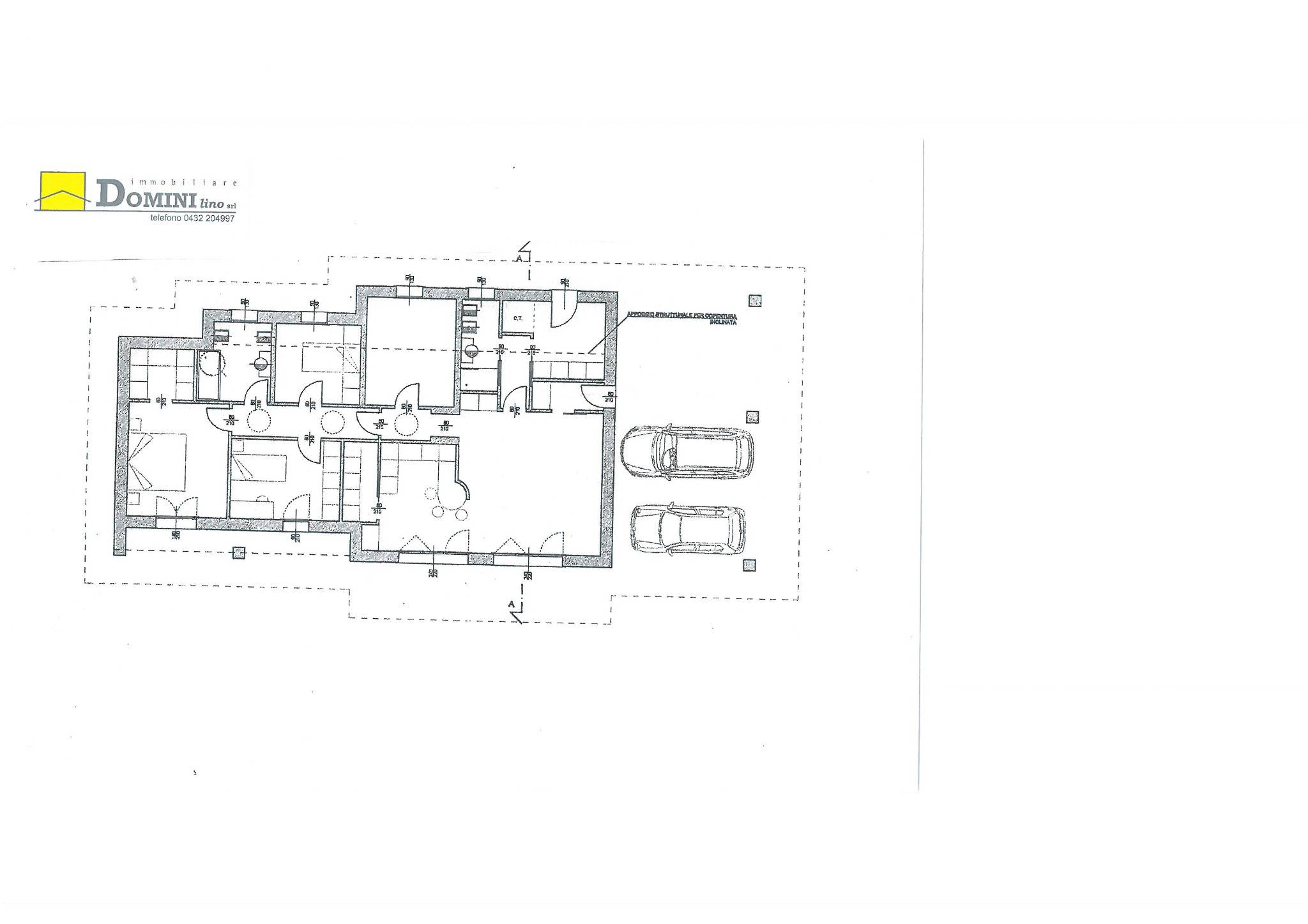
In area lottizzata terreno edificabile rettangolare di 920 mq recintato su due lati e a ridosso di un'area esposta a sud, interamente agricola. Il lotto è inserito in un contesto di sole villette di nuova realizzazione con architetture semplici e inserite in un contesto elegante. Si può realizzare una villa singola o anche una piccola bifamiliare. La proprietà causa trasferimento deve rinunciare dopo aver progettato una villetta tutto su un piano, funzionale con 3 camere con cabina armadio, più studio due bagni e un ampio soggiorno pari a una metratura di 149 mq. più un portico multifunzione totale di 54 mq. Da vedere !

Dettaglio immobile

Contratto Vendita
Rif v
Prezzo € 120.000
Provincia Udine
Comune Pradamano
Indirizzo Via Baldasseria 30
Superficie 920 mq
Ascensore no

Consistenze

Descrizione Superficie Sup. comm.
Principali
Terreno - piano terra 920 Mq 920 Mqc
Totale 920 Mqc

Planimetrie

Richiedi maggiori informazioni

Autorizzazione al trattamento dei dati personali+
Dichiaro di aver letto l'informativa sulla privacy ed accetto le condizioni d'utilizzo del servizio.
Riempi il campo con il codice riportato nell'immagine*
Codice Captcha
Chiamaci Contattaci