Palazzo intero primi 900 parzialmente locato

Udine - zona Stazione - Europa

Rif: D
Condividi Linkedin Whatsapp Stampa
€ 1.850.000
Palazzo
2008 Mq
6 Vani
Classe energetica G
4 Bagni
Garage
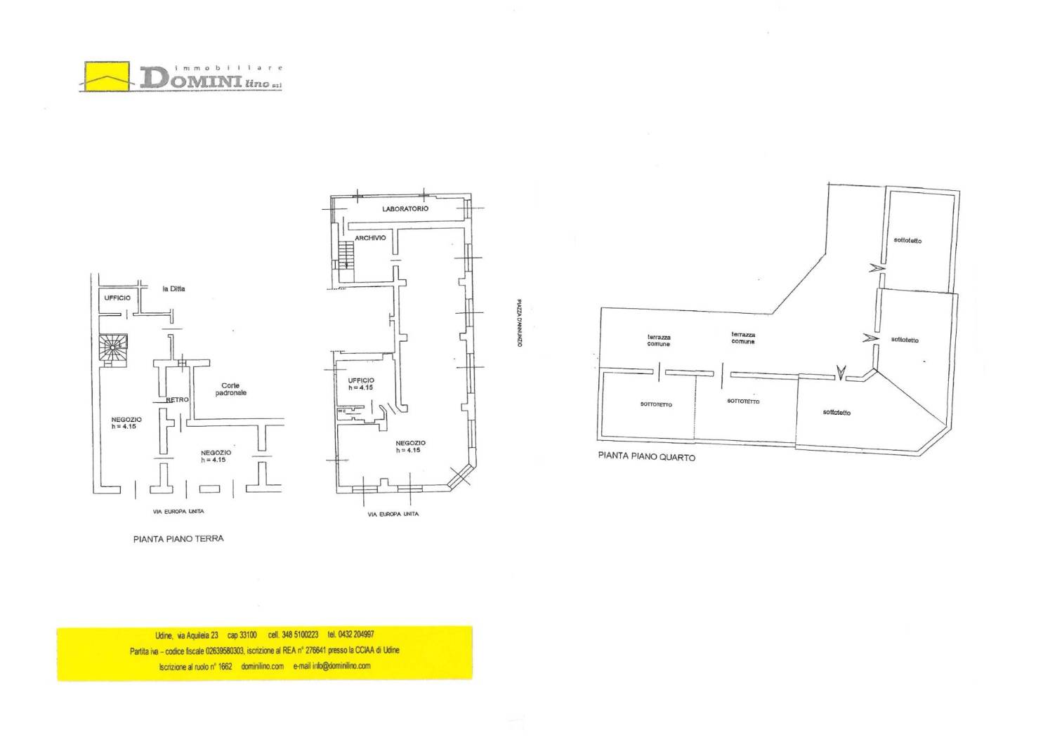
Palazzo intero in vendita composto da 4 piani più lo scantinato e la soffitta al 4 piano. Il fabbricato è dotato di garage e posti auto internamente nell'area condominiale. Piano terra ci sono 3 negozi di cui uno locato più posti auto e un appartamento il cui accesso si ha nella corte interna; Primo piano uffici interamente locato ad un amministratore di condominio; Secondo piano due ampi appartamenti con diverse camere ad uso residenziale; Terzo piano ci sono due ampi appartamenti con diverse camere; Quarto piano soffitte sottotetto e cantine nel piano scantinato. L'immobile è stato realizzato nel 1922 ed è di pregio per le finiture interne. L'immobile si presta benissimo per uno Studentato vista la posizione in cui si trova, non molto lontano dalla stazione dei treni e dalle Università in centro Città. Ottimo investimento per chi intende ottenere delle agevolazioni a posto letto per uno studentato. Vera Opportunità !!!

Dettaglio immobile

Contratto Vendita
Rif D
Prezzo € 1.850.000
Provincia Udine
Comune Udine
Zona Stazione - Europa
Indirizzo Viale Europa Unita
Superficie 2008 mq
Vani 6
Bagni 4
Classe energetica G (DL 192/2005)
EPI 175 kwh/m2 anno
Riscaldamento autonomo
Condizioni abitabile
Anno di costruzione 1922
Ascensore no
Garage 70 mq
Parcheggio si
Balcone si

Consistenze

Descrizione Superficie Sup. comm.
Principali
Negozio - piano terra 289 Mq 289 Mqc
Negozio - piano terra 228 Mq 228 Mqc
Ufficio - 1° piano 273 Mq 273 Mqc
Ufficio - 1° piano 189 Mq 189 Mqc
Immobile - 2° piano 297 Mq 297 Mqc
Immobile - 2° piano 165 Mq 165 Mqc
Immobile - 3° piano 299 Mq 299 Mqc
Immobile - 3° piano 157 Mq 157 Mqc
Immobile - 1° piano 46 Mq 46 Mqc
Magazzino - 4° piano 120 Mq 30 Mqc
Box/Garage - piano terra 70 Mq 35 Mqc
Totale 2.008 Mqc

Planimetrie

Richiedi maggiori informazioni

Autorizzazione al trattamento dei dati personali+
Dichiaro di aver letto l'informativa sulla privacy ed accetto le condizioni d'utilizzo del servizio.
Riempi il campo con il codice riportato nell'immagine*
Codice Captcha
Chiamaci Contattaci